$238,900
$238,900

Both bedrooms are full suites with their own bath and closet. Not a primary and a lesser second bedroom that shares a hall bath. Two real suites. Your primary has a dual vanity and a tub. The second has its own private bath with a glass-enclosed shower and a walk-in closet. If a friend stays the weekend, they have their own space. If it's just you, the second suite becomes whatever you want and stays that way.
Flip on the fireplace, stretch out, and let the evening go wherever it goes. The rec room is nearly 19' x 20' with its own half bath, a window for real daylight, and enough space that it becomes whatever you need without ever feeling cramped. Some nights it's a movie. Some nights it's a workout. Some nights you're just down here because it's quiet and nobody needs anything from you.
The roof was replaced in 2025. So was the A/C. The lawn gets mowed, the snow gets plowed, the water and sewer are covered, the trash gets picked up, and the exterior of the building is maintained. All of it handled by the HOA. Fresh paint and new carpet are already done. The windows were serviced in 2026 with new seals and updated hardware. You're not inheriting a project list. You're inheriting a home where the boring stuff is finished and your time "Off the Clock" belongs to you... so you can lounge by the pool.
The new French doors in the kitchen frame the best part of the location. Open grass, scattered trees, and no rear neighbors. Just green space and sky until you see the church in the distance. The deck is private with a fence panel separating you from the next unit, perfect for morning coffee and evening cocktails For a condo, this much breathing room out back is rare, and you'll notice it every time you look out.
Crooked Can, Pine Coast, Casa Jalisco, Olympic Diner, and enough options on Rome Hilliard Road that you never have to plan dinner more than five minutes in advance. Old Hilliard is a short drive for the shops, the restaurants, and the Heritage Rail Trail when you feel like a walk or a bike ride. Thorn Apple Golf Course is ten minutes away. Homestead Metro Park and Battelle Darby Creek are close enough for a Saturday morning that turns into a full afternoon. And I-70 is minutes from your front door, which puts downtown Columbus about twenty minutes away. You live in the middle of everything without feeling like it.
When the workday is over, do you want to think about yardwork and maintenance? Or do you want to come home, kick off your shoes, and actually enjoy your evening? That's the life waiting for you when you're ''Off the Clock.''
Some nights you're meeting friends at Crooked Can or grabbing dinner on Rome Hilliard Road. Some nights you're on the couch with no plans to move. Either way, nothing about this home is asking you for anything when you get here. The living room is wide open, the kitchen connects right to it, and the new French doors look out onto green space with no rear neighbors. It's the kind of place that feels calm the second you walk in.
Upstairs, both bedrooms are full suites with their own bath and closet. Dual vanity and a tub in one. A private shower in the second. Mornings feel different when you're not sharing a bathroom, and guests get their own space without you giving anything up.
The finished basement is where the rest of your life happens. Nearly 19' x 20' with a gas fireplace, a window, and its own half bath. Movie nights, a home gym, a reading corner you never have to clean up... this room becomes whatever you need and stays that way because nobody's telling you to put it back.
The pool opens in the summer and it's yours without any of the work that comes with it. Same goes for the roof (new 2025), the A/C (new 2025), the lawn, the snow, the water, the sewer, and the trash.
Old Hilliard, Thorn Apple Golf Course, Homestead Metro Park, and I-70 are all minutes away. Weeknight dinner that doesn't require a plan, a Saturday morning round at Thorn Apple, or 7,000 acres at Battelle Darby Creek when you need to disappear for a few hours.
Your life just got better when you're ''Off the Clock.''
The big-ticket items have been handled. Here's what's been done recently:
The next owner is inheriting a home where the project list is already done.
Most teams list your home and wait. The Parrett Group markets it. Every listing gets professional photography, cinematic video, a Matterport 3D virtual tour, a custom listing website, targeted digital advertising, and narrative-driven copywriting that tells the story of the home instead of listing specs. The team has helped over 2,000 families buy and sell homes since 1978, holds 155+ verified five-star reviews across Google, Zillow, Facebook, and FastExpert, and has broken dozens of neighborhood price records across Central Ohio. The service model is built around guiding clients through the process, not pressuring them through it. Think less salesperson, more Sherpa.
The $410 monthly HOA fee at Hartford Village covers lawn care, snow removal, water, sewer, trash, exterior building maintenance, common area upkeep, recreation amenities, and access to the community pool with pavilion. The HOA also replaced the roof in 2025 as part of its exterior maintenance responsibilities. The only utilities the homeowner is responsible for beyond the HOA are electric, gas, and internet. For someone who values their free time over yard work and seasonal maintenance, the HOA essentially takes the entire exterior off your plate.
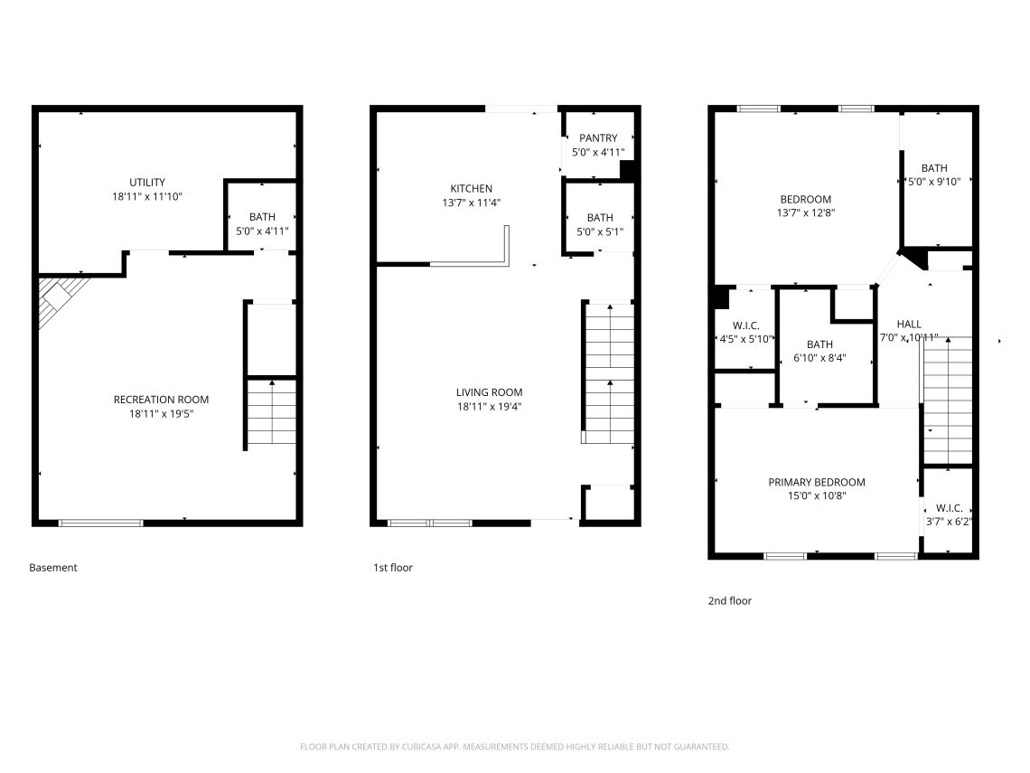
Yes, and that's rare for a condo at this price point. Most condos either don't have a basement at all or offer an unfinished storage area. This one has a full finished rec room that measures nearly 19' x 20' with a gas fireplace, a window for natural light, and its own half bath. Behind the rec room is a separate utility area with laundry hookups and additional storage. The finished basement adds 310 square feet of livable space to the home's total, bringing it to 1,630 square feet. It's the kind of bonus space that changes how you use the rest of the home.
The Rome Hilliard Road corridor is minutes away with a deep bench of dining options including Crooked Can, Pine Coast, Casa Jalisco, Olympic Diner, and Black Swan Bar & Grill, plus grocery, retail, and everyday services. Old Hilliard is a short drive for more shops, restaurants, and the Heritage Rail Trail trailhead for walking and biking. Thorn Apple Golf Course is about ten minutes away for an affordable round. For outdoor recreation, Homestead Metro Park and Battelle Darby Creek Metro Park are both nearby, with Battelle Darby offering over 7,000 acres of trails, prairies, and a nature center with a 53-foot indoor living stream. I-70 is minutes from the front door, putting downtown Columbus roughly twenty minutes away. Hartford Village sits in a spot where you can get to just about anything without planning around it.
The Parrett Group is a family-founded real estate team operating under Cutler Real Estate, serving Columbus, Grove City, Galloway, Hilliard, and the broader Central Ohio region. Connie Parrett, a second-generation Realtor licensed since 1978, leads the team alongside Managing Partner Billy Wemlinger and his wife Angie Parrett Wemlinger. Their team of agents, including the listing agent of this home, Tracy McDaniel, has helped over 2,000 families buy and sell homes. The Parrett Group consistently ranks within the top 1% of Realtors locally and nationally, holds 155+ verified five-star reviews across Google, Zillow, Facebook, and FastExpert, and has broken dozens of neighborhood price records across Central Ohio. Whether you're buying or selling, the approach is the same: honest advice, clear communication, and a team that treats every client like the only one on the list.
We've developed a unique and very successful process over the years.
We've helped hundreds of buyers find their dream homes. We'll help you too.